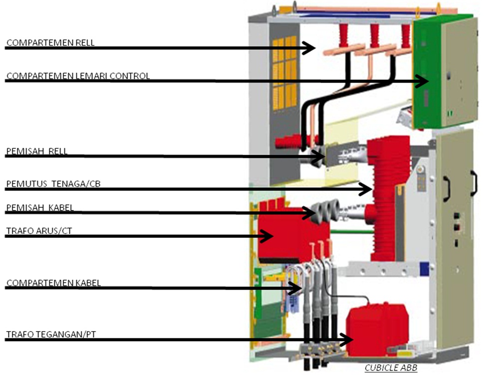
Fungsi Kubikel 20 Kv. Kapasitas yang akan digunakan pada kubikel 20kv ini sesuai dengan namanya adalah sebesar 20kv. Kubikel 20 kv biasa terpasang pada gardu distribusi atau gardu hubung.
Fungsi lampu indikator untuk menandai adanya tegangan 20 kv pada sisi kabel baik berasal dari sisi lain kabel tersebut atau berasal dari busbar sebagai akibat alat hubung dimasukkan lampu indikator menyala dikarenakan adanya arus kapasitif yang dihasilkan oleh kapasitor pembagi tegangan. 1 kubikelpms pemisah sebagai pemutus atau penghubung aliran listrik 20 kv kontak penghubung tidak dilengkapi alat peredam busur api sehingga posisi alat kontak buka tutup harus dilakukan dalam keadaan tidak berbeda. Berfungsi sebagai pemutus ataij penghubung aliran listrik 20 kvkontaik penghubung dilengkapi peredam busur api sehingga dapat dioperasikan dalam keadaan berbeda bisa terpasang pada kabel incoming atau outgoing gardu distribusi atau gardu hubung pada umumnya kubikellbs dilengkapi dengan sakelar pentanahan yang didalam tabung lbs atau terpisah diluar tabung yang.
Berfungsi sebagai pemutus ataij penghubung aliran listrik 20 kvkontaik penghubung dilengkapi peredam busur api sehingga dapat dioperasikan dalam keadaan berbeda bisa terpasang pada kabel incoming atau outgoing gardu distribusi atau gardu hubung pada umumnya kubikellbs dilengkapi dengan sakelar pentanahan yang didalam tabung lbs atau terpisah diluar tabung yang.
Pemutus tenaga atau circuit breaker adalah suatu peralatan listrik yang digunakan untuk menghubungkan atau memutuskan arus listrik sesuai dengan ratingnya. Jenis dan fungsi kubikel terdiri dari. Fungsi lampu indikator untuk menandai adanya tegangan 20 kv pada sisi kabel baik berasal dari sisi lain kabel tersebut atau berasal dari busbar sebagai akibat alat hubung dimasukkan lampu indikator menyala dikarenakan adanya arus kapasitif yang dihasilkan oleh kapasitor pembagi tegangan. Kubikel 20 kv biasa terpasang pada gardu distribusi atau gardu hubung.
