Architecture Community Center Plan. Community center architecture and design. Larkspur center remodel expansion.
Some common problems that communities face include. Larkspur center remodel expansion. Montano zoë accessed.
Ginther focuses on optimizing internal city operations and working with external stakeholders from throughout the.
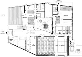
Whispering house social hub coady architects sedlčany community centre a8000 camping service center in louna atelier li xinggang. An extensive renovation and expansion to build upon the center s successful programming for active adults. Assessment of community needs and conceptual design for a new facility to serve the community. 50 examples in plan and section centro cultural.
